BUNGALOW宇部恩田 新築分譲住宅

ワンフロア
完結する平屋

家族が繋がる
開放的なLDK

適材適所に
収納を設置

抜群の
ロケーション

\ 家賃並みで叶う、宇部恩田の平屋暮らし /

BUNGALOW 宇部恩田

限定1棟・完成見学会 開催中

月々 8.2万円で買える

土地76坪 / 3LDK / 平屋住宅

販売価格 3,140万円(税込)

家族の時間を育む、心地よい平屋。

利便性の高い宇部市恩田エリアに、
暮らしやすさとデザイン性を兼ね備えた新築分譲住宅が誕生します。
家族のコミュニケーションが自然と生まれるワンフロアの住まいで、
新しい毎日を始めませんか。

BUNGALOW 紹介ページ

こんなお悩み・ご希望はありませんか?

  • アパートの家賃がもったいないと感じている
  • 老後も暮らしやすい「平屋」を探している
  • 来客用も含めて駐車場は3台分は欲しい
  • 恩田小学校エリアで、子育てしやすい環境がいい

そのご希望、BUNGALOW宇部恩田ならすべて叶います!

安心快住

安心して快適に暮らせるということ

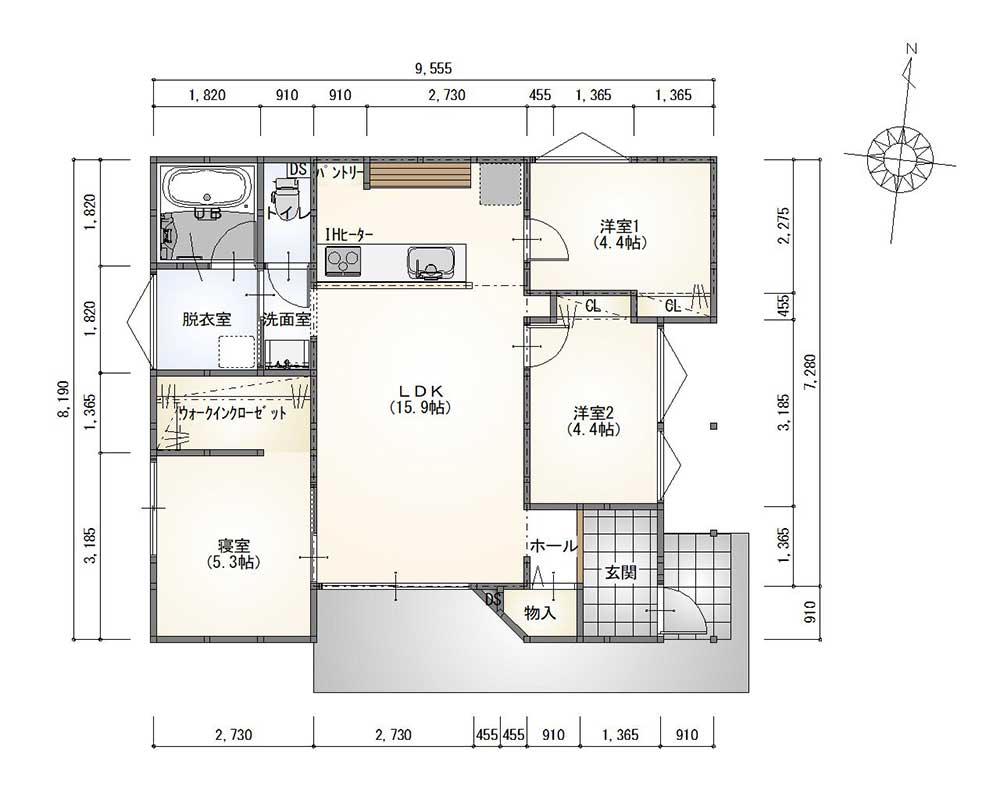
山口県宇部市の利便性の高い恩田エリアに、 ワンフロアで家族が心地よく繋がる新築分譲住宅「BUNGALOW宇部恩田」が誕生します。 開放的な3LDKの平屋は、家族が自然と集うLDKを中心に、 適材適所の収納を設けた暮らしやすい設計が魅力です。 また、恩田小学校やスーパー、公園が全て徒歩圏内という子育て世代に嬉しい住環境も整っています。 こちらの物件は、家具やエアコン2台、 外構工事まで含めて3,140万円(税込)で、 見学予約を受付中です。

お金のリアル

借入
3,140万円
頭金
0
月々約
82,399
変動1.2% 40年
ボーナス払い
0

もし今、月8万円〜9万円の家賃を払っているなら、
資産になり老後も安心な『平屋』を手に入れませんか?

GALLERY

2026/02現地完成写真1

2026/02完成 new

2026/02現地完成写真2

2026/02完成 new

2026/02現地完成写真3

2026/02完成 new

2026/02現地完成写真4

2026/02完成 new

2026/02現地完成写真5

2026/02完成 new

2026/02現地完成写真6

2026/02完成 new

ARCHIVE
2026/01/18現地写真1

2026/01/18

2026/01/18現地写真2

2026/01/18

2026/01/18現地写真3

2026/01/18

2026/01/18現地写真4

2026/01/18

2026/01/18現地写真5

2026/01/18

2026/01/18現地写真6

2026/01/18

2026/01/18現地写真7

2026/01/18

2026/01/18現地写真8

2026/01/18

2026/01/18現地写真9

2026/01/18

2026/01/18現地写真10

2026/01/18

2026/01/10現地写真1

2026/01/10

2026/01/10現地写真2

2026/01/10

2026/01/10現地写真3

2026/01/10

2026/01/10現地写真4

2026/01/10

2026/01/10現地写真5

2026/01/10

2026/01/10現地写真6

2026/01/10

2026/01/08現地写真1

2026/01/08

2026/01/08現地写真2

2026/01/08

2026/01/08現地写真3

2026/01/08

2026/01/08現地写真4

2026/01/08

2026/01/08現地写真5

2026/01/08

2025/12/25現地写真1

2025/12/25

2025/12/25現地写真2

2025/12/25

2025/12/25現地写真3

2025/12/25

2025/12/25現地写真4

2025/12/25

2025/12/25現地写真5

2025/12/25

2025/12/15現地写真1

2025/12/15

2025/12/15現地写真2

2025/12/15

2025/12/15現地写真3

2025/12/15

2025/12/15現地写真4

2025/12/15

2025/12/15現地写真5

2025/12/15

2025/12/14現地写真1

2025/12/14

2025/12/14現地写真2

2025/12/14

2025/12/14現地写真3

2025/12/14

2025/12/14現地写真4

2025/12/14

2025/12/11現地写真1

2025/12/11

2025/12/11現地写真2

2025/12/11

2025/12/11現地写真3

2025/12/11

2025/12/6現地写真1

2025/12/6

2025/12/6現地写真2

2025/12/6

2025/12/6現地写真3

2025/12/6

2025/12/6現地写真4

2025/12/6

2025/12/6現地写真5

2025/12/6

2025/12/2現地写真1

2025/12/2

2025/12/2現地写真2

2025/12/2

2025/12/2現地写真3

2025/12/2

2025/12/2現地写真4

2025/12/2

2025/12/2現地写真5

2025/12/2

2025/11/21現地写真1

2025/11/21

2025/11/21現地写真2

2025/11/21

2025/11/21現地写真3

2025/11/21

2025/11/21現地写真4

2025/11/21

2025/11/21現地写真5

2025/11/21

2025/11/14現地写真1

2025/11/14

2025/11/14現地写真2

2025/11/14

2025/11/14現地写真3

2025/11/14

2025/11/13現地写真1

2025/11/13

2025/11/13現地写真2

2025/11/13

2025/11/13現地写真3

2025/11/13

2025/11/10現地写真1

2025/11/10

2025/11/10現地写真2

2025/11/10

2025/11/10現地写真3

2025/11/10

2025/11/06現地写真1

2025/11/06

2025/11/06現地写真2

2025/11/06

2025/11/06現地写真3

2025/11/06

2025/10/30現地写真1

2025/10/30

2025/10/30現地写真2

2025/10/30

2025/10/30現地写真3

2025/10/30

2025/10/28現地写真1

2025/10/28

2025/10/28現地写真2

2025/10/28

2025/10/28現地写真3

2025/10/28

2025/10/23現地写真1

2025/10/23

2025/10/23現地写真2

2025/10/23

2025/10/18現地写真1

2025/10/18

2025/10/18現地写真2

2025/10/18

2025/10/18現地写真3

2025/10/18

2025/10/13棟上げ写真

2025/10/13上棟

2025/10/13棟上げ写真

2025/10/13上棟

2025/10/13棟上げ写真

2025/10/13上棟

2025/10/13棟上げ写真

2025/10/13上棟

2025/10/13棟上げ写真

2025/10/13上棟

2025/10/08現地写真

2025/10/08

2025/10/06現地写真

2025/10/06

2025/09/27現地写真

2025/09/27

2025/09/12現地写真

2025/09/12

2025/09/12現地写真

2025/09/12

FEATURES

飽きのこない外観

ブラックのガルバリウムに梁と柱が調和。 数十年後も飽きのこないシンプルな外観と、 平屋ならではの勾配天井が魅力です。

家族が繋がるLDK

開放的なリビング・ダイニング・キッチン。家族が自然と集まり、コミュニケーションが弾む空間です。

開放的なリビング

梁をあらわしにした広々とした空間。無垢のフロアが心地よく、 大きな窓から差し込む光と勾配天井が、リビングをより開放的に感じさせます。

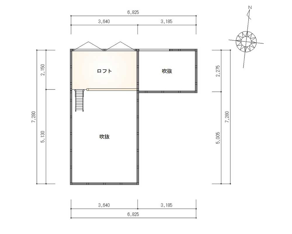
吹き抜けの子ども部屋

勾配天井を活かした吹き抜け空間。高窓から光が差し込み、 4.4帖とは思えない開放感と明るさを感じられます。

駐車3台可能

毎日の通勤やお出かけに便利な3台分の駐車スペースを確保。来客時も安心です。

モルタルデッキ

モルタルデッキはリビングとつながり、アウトドアリビングとしても楽しめます

LIFE INFORMATION

恩田の暮らし — 日々の便利さと、緑やスポーツ施設に近い快適な住環境

宇部市恩田は、都市の利便と落ち着いた住宅街のバランスがちょうど良い暮らしやすさを実感できるエリアです。 付近には、地域のシンボルとも言える 恩田運動公園(野球場・体育館など各種スポーツ施設)や 宇部市中央公園が徒歩圏。 週末は家族でジョギングなどアクティブに過ごせます。

交通アクセス — 毎日の通勤通学も無理なく

最寄りの公共交通機関はJR宇部線の 東新川駅。 駅までは徒歩圏内(約1km、徒歩約12〜20分)で、通勤・通学で電車を利用する方にも対応できます。 主要幹線道路へも出やすく、車での移動もスムーズです。

教育環境 — 子育て世帯にも安心

周辺には 宇部市立恩田小学校 をはじめとする教育施設が近く、 幼稚園・保育園も点在。通学区が整備され、子どもの通学も安心です。

買い物・生活利便 — 日常は手早く、休日はゆったり

地域のスーパーや商店に加え、大型ショッピングセンター(フジグラン宇部等)も利用可能な距離。 食品や日用品から衣料品、飲食店まで揃い、日常も休日も便利に暮らせます。

この場所に住むという価値

恩田エリアは「生活利便」と「地域の落ち着き」を両立した希少な住宅地です。 スポーツ施設や教育施設に近く、生活圏に必要なものが揃うため、ファミリー層を中心に、 将来にわたって安定した住環境を求める方におすすめです。

マックスバリュ
徒歩8分
毎日のお買い物に
恩田小学校
徒歩11分
通学も安心
セブンイレブン
徒歩4分
生活に便利
恩田運動公園
徒歩7分
お散歩コースに
恩田運動公園バス停
徒歩約7分
ちょっとお出かけ
JR宇部線・東新川駅
徒歩約14分
遠出に便利

物件概要

価格 3,140万円(税込)
所在地 山口県宇部市恩田町2丁目13-21
土地面積 252.18㎡
建物面積 1F:70.38㎡ / ロフト:7.82㎡
間取り 3LDK
完成時期 2026年2月(予定)
取引態様 売主
確認番号 R7建確建住セ山第0285号
その他 家具、エアコン2台、LED照明、カーテン、外構工事 付

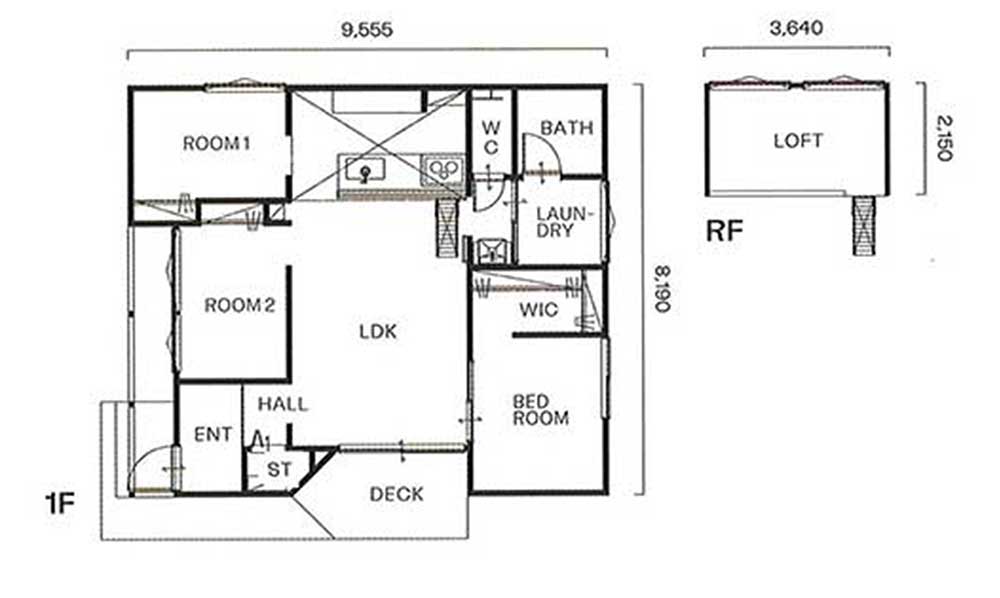
間取り

1F

1F間取り

2F

RF間取り

アクセス・周辺環境

最後に、実際の建物をご覧ください。

写真や間取り図だけでは伝わらない
「無垢の木の香り」「平屋の広がり」「生活動線の良さ」を、
ぜひ一度、現地でご体感ください。
限定1棟につき、お早めのご予約をおすすめしております。